top of page
Studio
​
Eber

POP Bar
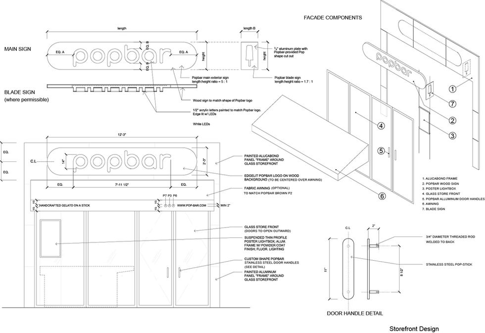
EFGH was approached to redesign an existing store with the intention to franchise the brand. An 800 sq ft prototype is used as the basis to develop the franchise guidelines inclusive of all necessary design documents, including furniture, display items, back-of-house, signage and graphics. The material strategy for the store is based on the ice pop stick, whereby milled plywood build up the furniture and display components in layers. A steel and glass interior window wall allows for customers to view to the production space, while a highly transparent street facade allows visual access to the merchandise from the street.

bottom of page



